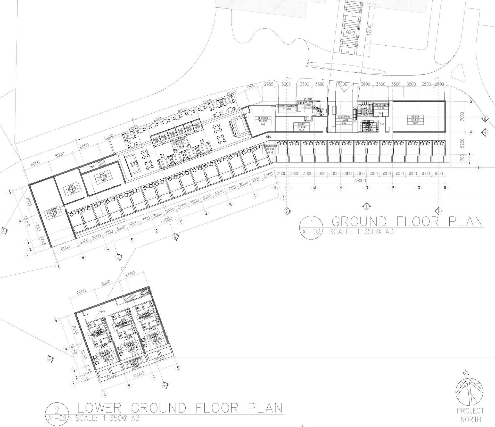
Portfolio I COMMERCIAL I Detail Engginering Drawing

Fraser Driving Lounge, Bogor

© Design by LARCH STUDIO

S

U

R

V

E

Y

3D I M A G E

source by https://www.google.com/search?client=firefox-b-d&q=fraserdrivinglounge